Trilocale in vendita

Milano, Corso Lodi - Piazzale Lodi
€ 795.000
4 locali 4 locali
110 Mq 110 Mq
2 bagni 2 bagni

Trilocale in vendita

Milano, Corso Lodi - Piazzale Lodi

Descrizione annuncio

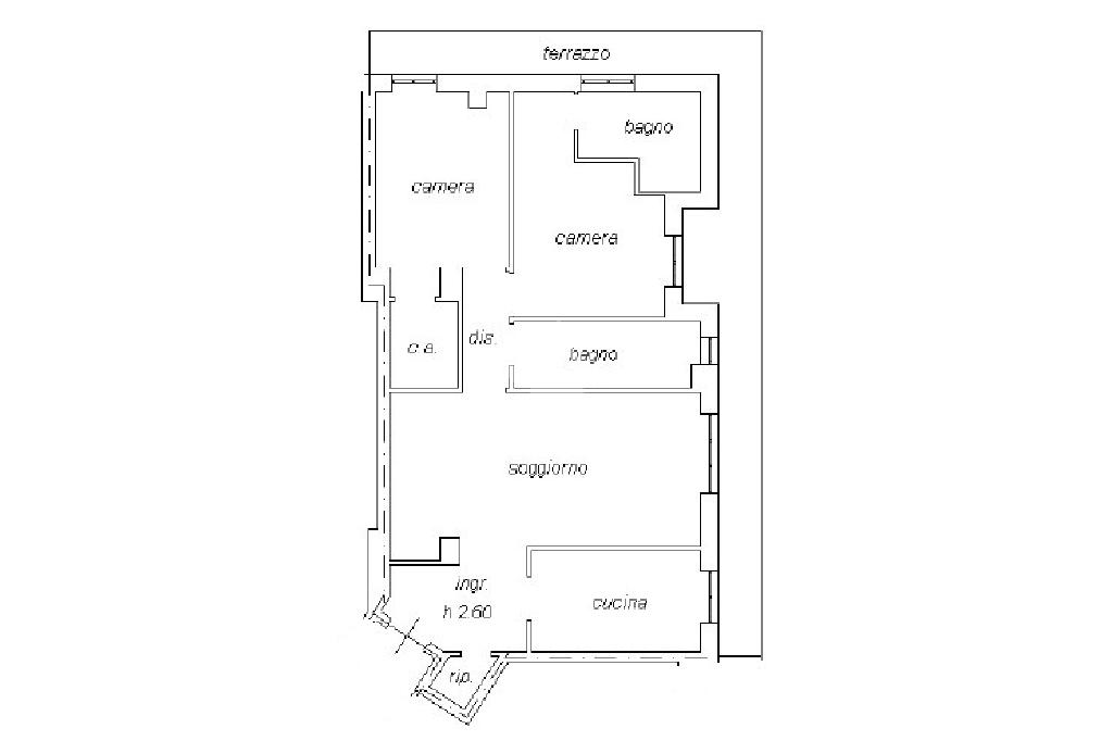
Nel cuore di Milano, in zona Piazzale Lodi, è disponibile un appartamento signorile in vendita, situato in un contesto elegante e tranquillo. L'immobile, completamente ristrutturato, si trova al piano alto di un edificio dotato di ascensore, garantendo una vista panoramica e una luminosità naturale invidiabile. Con una superficie di 110 mq, l'appartamento offre spazi ben distribuiti: due ampie camere da letto, due bagni moderni, un soggiorno accogliente e una cucina funzionale. Un terrazzo privato rappresenta un angolo ideale per momenti di relax all'aperto. Inoltre, una camera aggiuntiva offre la possibilità di creare uno studio o una zona hobby. Il giardino condominiale è un ulteriore valore aggiunto, perfetto per chi cerca un'oasi verde in città. Costruito nel 1970, l'edificio mantiene il fascino dell'epoca, arricchito da comfort moderni.

La zona è facilmente raggiungibile con i mezzi di superficie: autobus 77, 34, filobus 90, 91,92, passante ferroviario fermata Porta Romana e la metropolitana (linea gialla) fermate MM3 Lodi e Brenta ai quali si aggiungono comode attività commerciali ed il nuovo servizio di Bike sharing.
Area di elevato interesse sociale che andrà giorno per giorno rivalutandosi grazie ai vari progetti previsti per l'Area Scalo Porta Romana come ad esempio il Fondazione Prada, un grande atelier dedicato all'arte contemporanea, realizzato in via Brembo ed il nuovo progetto Smart City Scalo Porta Romana luogo principale per il villaggio Olimpico delle Olimpiadi invernali di Milano - Cortina 2026.

Le presenti informazioni non costituiscono elemento contrattuale.

Mostra tutto

Nelle vicinanze

Trasporto pubblico Trasporto pubblico
Brenta
Brenta
320 m
Lodi T.I.B.B.
Lodi T.I.B.B.
420 m
Milano Porta Romana
Milano Porta Romana
180 m
stazione di Milano Porta Vittoria
stazione di Milano Porta Vittoria
1,8 Km
Piazza Salgari
Piazza Salgari
760 m
Ricariche auto elettriche Ricariche auto elettriche
BeCharge Milano Bacchiglione
440 m
A2A Corso Lodi
590 m
A2A Isola Digitale Corso Lodi
1,2 Km
BeCharge Milano Botta
1,4 Km
A2A Isola Digitale Largo Marinai D'Italia
1,6 Km
Scuole Scuole
Scuole
280 m
Forma Mentis
320 m
Scuola media "Lombardini"
510 m
Scuola elementare Colletta
550 m
Scuola media statale "Corrado Alvaro"
640 m
Farmacia Farmacia
San Luigi
60 m
Lloyds farmacia comunale N. 13
360 m
Farmacia
530 m
Farmacia dott. Metalla
640 m
Antica Farmacia Chiaravalle
850 m
Ospedali Ospedali
Asl
350 m
Casa di cura "Città di Milano"
1,9 Km
Casa di Cura La Madonnina
2,0 Km
Ospedale Gaetano Pini
2,0 Km
Ospedali
2,0 Km
Supermercati Supermercati
Carrefour Market
400 m
Ipercoop
450 m
NaturaSì
540 m
Conad
570 m
Sigma - Fratelli Izzi
580 m
Negozi Negozi
Negozi
130 m
Il Pane di Mario & Mario
220 m
Alimnetari Hua Qiao
230 m
Zara
430 m
Intimissimi
450 m
Bar Bar
Ligh Lime
80 m
Re Artù Cafè
180 m
Bar Mascagni
410 m
Bar
460 m
TaxiBlues
560 m
Ristoranti Ristoranti
istanbul Bosforo
100 m
Ristoranti
140 m
Brembo
330 m
Time Out 2
350 m
Osteria Tajoli
400 m
Mostra tutto

Caratteristiche

Rif.:
60976848
Piano:
7 di 9 con ascensore (Piano alto)
Terrazzi:
1
Camere da letto:
2
Arredamento:
Completo
Condizionamento:
Predisposizione impianto
Mostra tutto
Prezzo Prezzo
€ 795.000
Rata mutuo Rata mutuo
€ 3.777 / mese
Spese annue Spese annue
€ 5.000
Proponi il tuo prezzoProponi il tuo prezzo

Classe Energetica

E
E
E
E
E
E
E
E
E
EP globale non rinnovabile:
113.00 kW h/m² anno
EP globale rinnovabile:
60.00 kW h/m² anno
EP invernale del fabbricato:
EP estiva del fabbricato:
Anno di costruzione:
1970
Riscaldamento:
Centralizzato
Tipo impianto:
A radiatori
Tipo alimentazione:
Metano

Ti interessa visionare l'immobile?

Fissa un appuntamento  Fissa un appuntamento

Richiedi informazioni

Clicca su Leggi per aprire l'informativa
* Questi campi sono obbligatori

Calcola il tuo mutuo

Semplice e senza impegno
Anticipo

( % )
Mutuo

( % )

pochi semplici passi

inserisci i tuoi dati
Questionario completato
Grazie per aver richiesto un appuntamento senza impegno con un nostro Consulente del Credito e Assicurativo.

Hai inserito correttamente tutti i dati necessari e a breve riceverai una e-mail con un link da convalidare per inviare i tuoi dati.
Affiliato
Immobiliare Tecnosviluppo 1 Sas
Corso Lodi, 59 20139 Milano (MI)

Il nostro staff


  • Vito Mele
    Affiliato
Corso Lodi, 59 20139 Milano (MI)
Zona: Corso Lodi - Fondazione Prada
Mostra su mappa
Orari: dal lunedì al venerdì 9.00/12.30 - 14.30/20.00 - sabato 090.00/12.30
Affiliato
Immobiliare Tecnosviluppo 1 Sas
Corso Lodi, 59 20139 Milano (MI)

2026 Tecnocasa Franchising S.p.A. - P. IVA 08365160152 - Via Monte Bianco 60/A 20089 Rozzano (MI). Ogni agenzia ha un proprio titolare ed è autonoma. Privacy policy | Policy utilizzo | Cookie policy